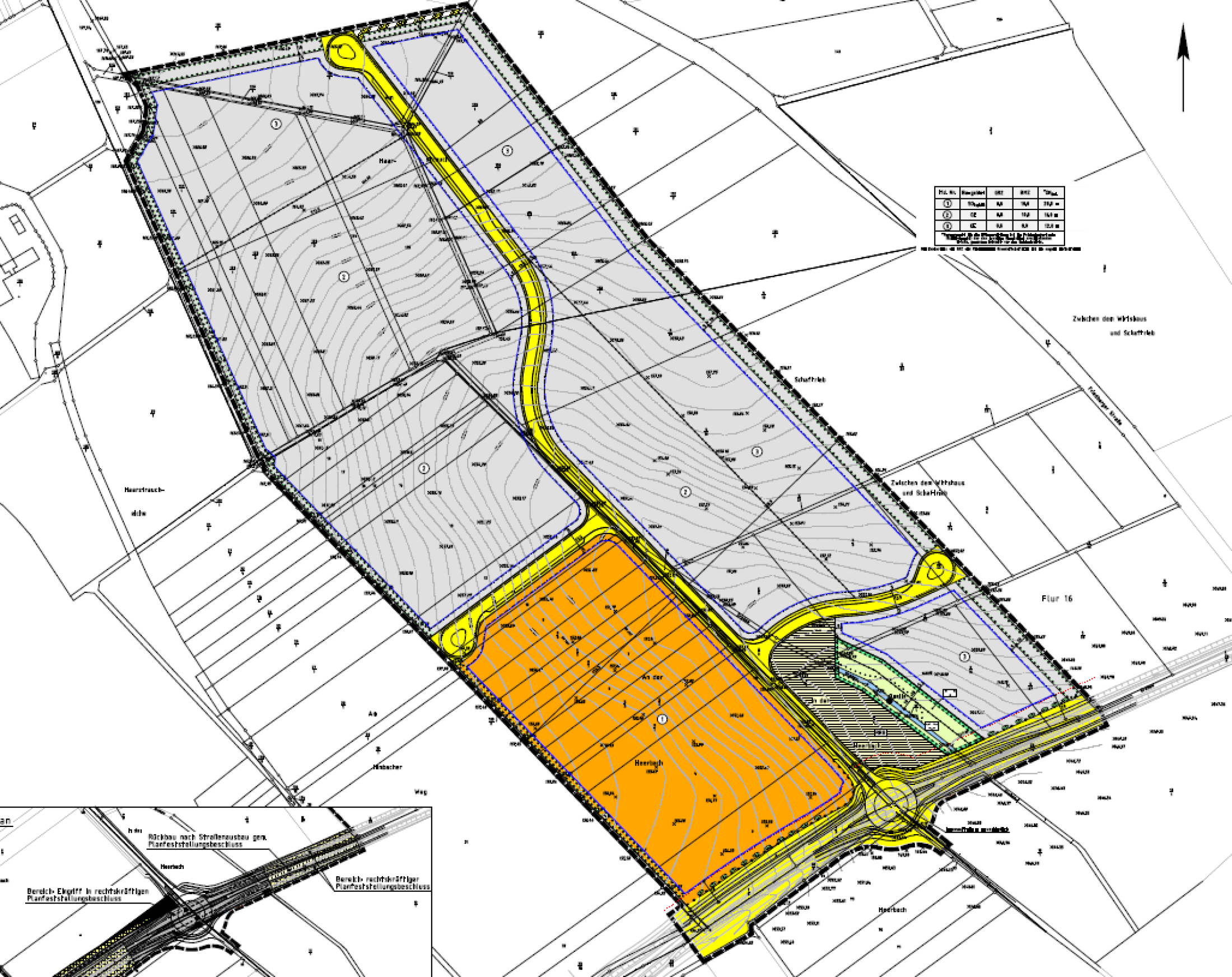
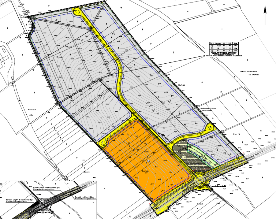
Interkommunales Gewerbegebiet "Limes"
Im Nordosten von Frankfurt, direkt an der Ausfahrt Hammersbach der A45 entsteht das Interkommunale Gewerbegebiet "Limes". Auf 240.000 m² Fläche entwickeln wir hier ein Gewerbegebiet mit optimaler Anbindung an den Ballungsraum Rhein/Main. Die Autobahnen A3, A5 und A66 sind auf kurzem Weg zu erreichen.
Die Entfernung zu Hanau beträgt ca. 18 km, zu Frankfurt/Main ca. 33 km.









